Informazioni sul prodotto
Caratteristiche e dimensioni:
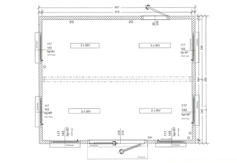
Dimensioni esterne: Lunghezza 6,01 m × Larghezza 4,90 m × Altezza 2,75 m
Dimensioni interne: Lunghezza 5,75 m × Larghezza 4,64 m × Altezza 2,50 m
Materiali da costruzione:
Struttura in acciaio zincato con lamiera da 0,5 mm
Isolamento in lana minerale pressata (100 mm)
Controsoffitto in OSB con finitura in pannelli in PVC o Rigips
Pavimento rinforzato (carico max 200 kg/m²) con rivestimento in PVC effetto legno
Aperture:
Porta esterna: 2100 mm × 2100 mm
Porta interna: 800 mm × 2100 mm
Finestre in PVC con doppi vetri: 1170 mm × 1430 mm
Attrezzatura inclusa:
Ventilazione naturale: 2 unità
Tapparelle manuali: 6 unità
Porta avvolgibile manuale: 1 unità
Pensilina e soffitta a 4 lati: inclusa
Impianto elettrico completo:
Linee e prese elettriche a 230 V
Illuminazione a LED (4 x 14 W)
Riscaldamento elettrico con fusibili separati
Allacciamento idrico e fognario: tubature integrate nelle pareti
Uno spazio vendita chiavi in mano
Questo contenitore di vendita nella versione standard è progettato per fornire un ambiente di lavoro piacevole e funzionale. L’isolamento di qualità e le attrezzature moderne garantiscono un comfort ottimale, sia che si tratti di uno spazio di vendita, di un ufficio o di uno showroom temporaneo.
Il suo design modulare consente un’installazione rapida e il suo design personalizzabile (colori, finiture) consente di adattarlo all’immagine della vostra azienda. Contattateci per maggiori informazioni sulla personalizzazione e sulla disponibilità.








